当サイトは物件紹介をブログ形式で皆様へお届けしております。
空室状況については、都度お問い合わせ下さいませ。
Family with FIX
お問い合わせ番号:OT14333
当サイトは物件紹介をブログ形式で皆様へお届けしております。
空室状況については、都度お問い合わせ下さいませ。
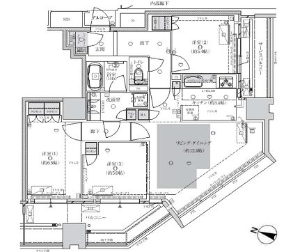
間取り

物件画像一覧
周辺地図
物件情報
| 種別 | 所在地 | 構造 | 駐車場 |
|---|---|---|---|
| ファミリータイプ | 大阪府大阪市港区弁天 | 鉄筋コンクリート造 29階建 |
有 |
| タイプ | エレベーター | 完成 | 戸数 |
| 3LDK(+S) | 有 | 2023年1月 |
|
| 物件設備 |
|
||
| 交通 | JR大阪環状線/弁天町駅 徒歩4分 |
||
部屋情報
| 家賃 | 専有面積 | 敷金 | 礼金 |
|---|---|---|---|
| 275,000円 | 76.67m² | 275,000円 | 275,000円 |
| 共益費 | 完成年月 | バルコニーの向き | |
| 0円 | 2023年1月 | 南西 | |
| 初回保証料100% | 家財保険(月額) | 家財保険(月額) | 鍵 |
| 円 | 1,100円 | 1,100円 | 35,000円 |
| 部屋設備 |
|
||
LINEでお問い合わせ
メールフォームからお問い合わせ
下記のフォームに必要事項とお問い合わせ内容を入力して送信してください。
※お名前、メールアドレス、お問い合わせ内容は必ず入力してください。
view この物件を見た人はこんな物件も見ています
これがリバービューだっ!!!
見逃し厳禁中之島を語りリバービューを叫ぶ...
- 福島区
- 1LDK(+S)
- ¥185,500

遠くまで見えるよ~!
角カックン!!FIXから大阪市内全域見渡せ...
- 西区
- 3LDK(+S)
- ¥310,000

TOP CLASS CITY TOWER
住友不動産シリーズ”シティタワー”大阪市で...
- 中央区
- 2LDK(+S)
- ¥600,000

Lの世界
せっかくタワーマンションに住むならこれを...
- 西区
- 3LDK(+S)
- ¥500,000

色褪せない
THE OSAKA なTHE GREEN なTHE OFFICE な...
- 西区
- 2LDK(+S)
- ¥300,000

多頭飼OK♪タワー3LDK
80㎡越3LDK高級タワーマンションからついに...
- 西区
- 3LDK(+S)
- ¥350,000

淀屋橋で格上げの住
「そろそろいい暮らししたい」そんな気持ち...
- 中央区
- 1LDK(+S)
- ¥170,000

モノホンリバービュー
都会でありながら川の潺を感じるリバーサイ...
- 西区
- 1LDK(+S)
- ¥182,000

空まで届く 堀江LIFE♡
スタイリッシュな間取りと洗練されたデザイ...
- 西区
- 2LDK(+S)
- ¥285,000

忙しいほど、ここがいい
都心で働きながら暮らしは自然体でいたいそ...
- 中央区
- 2LDK(+S)
- ¥250,000















